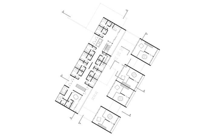
der kindergarten ist nach dem baukasten prinzip aufgebaut und besteht aus mehreren kuben, die ineinander verschachtelt sind und trotzdem ein homogenes äusseres bilden. die gruppenräume sind zur morgensonne ausgerichtet und bieten einen gruppeninternen rückzugsraum. auf ihrer rückseite befindet sich eine große halle, die den kindern als begegnungsfläche dient und auch für veranstaltungen genutzt werden kann. es wurde darauf geachtet das von innen möglichst viel grünraum zu sehen ist, so das das gefühl entsteht man wäre draussen in der natur. diesem aspekt folgt auch die materialwahl, welche verschiedene elemente der natur aufgreift, und so den kindern ein gefühl davon vermittelt, welche baustoffe wie eingesetzt werden können.
>>imprint