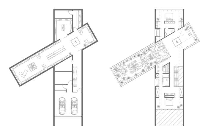
es wurden zwei unterschiedliche riegel entwickelt. der erste riegel steht für den beruf des bauingenieurs und nimmt daher die „urform“ des hauses auf - das satteldach. dieses satteldach gliedert sich auch sehr harmonisch in die umgebung vom baugebiet ein. in diesem riegel werden die grundlegenden funktionen des lebens aufgenommen. der zweite riegel verkörpert die gebürtige brasilianerin und wurde deswegen mit seiner giebelseite genau in richtung brasilien ausgerichtet. in diesem riegel werden die besonderen leidenschaften des paares aufgenommen und verbunden. um einen wesentlichen bezug zwischen den leidenschaften und den grundlegenden bedürfnissen zu schaffen, durchstößt dieser riegel den ersten.